Das erwartet Sie im Ferienhaus Am Großen Garten in Ilsenburg (Harz)
Unser Ferienhaus “Am Großen Garten” bietet Platz für bis zu 6 Personen. Das Haus ist sehr ruhig gelegen mit direkter Verbindung in den großen Garten (Nationalpark Harz). Es erwartet Sie ein Ferienhaus mit zwei Schlafzimmern, einem großen Wohn- und Essbereich, einem großen Bad sowie ein separates Gäste-WC und eine Küche.
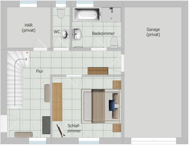
Untergeschoss Obergeschoss
Im Untergeschoss befinden sich die beiden Bäder und das große Schlafzimmer mit Doppelbett. Das Bad ist mit Dusche, Badewanne und WC ausgestattet. Das Schlafzimmer besitzt neben einem geräumigen Kleiderschrank und King-Size-Bett von 200 x 200 cm Fläche auch einen Flachbildfernseher. Durch die Lage im Untergeschoss ist es hier auch im Hochsommer sehr angenehm. Auch der großzügige Eingangsbereich bietet viel Platz um nach einem gelungenen Ausflug wieder anzukommen.
Im Obergeschoss (Holzhaus) befindet sich das zweite Schlafzimmer, die Küche und der großzügige Wohn- und Essbereich sowie die überdachte Veranda. Im Schlafzimmer oben befindet sich ein Einzelbett 80 x 200 cm, das ausgezogen werden kann, sodass eine Schlaffläche von 160 x 200 cm verfügbar ist. Des Weiteren gibt es hier einen begehbaren Kleiderschrank in dem ausreichend Stauraum vorhanden ist.
Die Küche ist mit Ceranfeld-Herd und Dunstabzugshaube, Spülmaschine, Kühlschrank und Hochtisch für zwei Personen ausgestattet. Es gibt eine Kaffeemaschine, Wasserkocher und Toaster. Weitere Einrichtungsgegenstände für den täglichen Bedarf sind vorhanden.
Der großzügige und gemütliche Wohn- und Essbereich ist das Highlight des Hauses und lädt zum Verweilen ein. Am Esstisch finden 6 Personen ohne Probleme Platz. Die geräumige Couch lädt zu gemütlichen Fernseh- und Spieleabenden ein. Zudem kann die Couch auch zu einer großzügigen Liegewiese ausgezogen werden auf der 2 Personen ohne Weiteres schlafen können.
Vom Wohn- und Esszimmer gelangt man durch eine zweiflüglige Tür zur überdachten Veranda. Wenn es mal windig sein sollte, kann ein Rollo und eine Glasscheibe kombiniert als Windfang eingesetzt werden.
Unser Ferienhaus ist mit TV- und Internetanschluss ausgestattet. Das Haus besitzt einen eigenen Parkplatz. Zudem stehen unmittelbar am Haus weitere öffentliche Parkplätze zur Verfügung. Haustiere auf Anfrage.
- Küche
- 2 Schlafzimmer
- Badezimmer und Gäste-WC
- Wohn- und Esszimmer
- Stellplatz
- Veranda und Garten
- TV- und Internetanschluss
- Haustiere erlaubt





